Alejandro Restrepo Montoya / From Temporary Shelters To Permanent Housing Medellin Colombia / Nacido en medellín, colombia, estudió arquitectura.

Alejandro Restrepo Montoya / From Temporary Shelters To Permanent Housing Medellin Colombia / Nacido en medellín, colombia, estudió arquitectura.. Show full description hide full description. Découvrez le profil de alejandro restrepo montoya sur linkedin, la plus grande communauté professionnelle au monde. A house held lightly in the top a hill, generating exterior and interior spaces for the family life. Averigua lo que alejandro restrepo montoya (arestrepom) ha descubierto en pinterest, la mayor colección de ideas del mundo. View alejandro restrepo's profile on linkedin, the world's largest professional community.

Alejandro indique 4 postes sur son. Progetti di alejandro restrepo montoya. 102, 2018 (ejemplar dedicado a: Alejandro restrepo montoya is on facebook. Join facebook to connect with alejandro restrepo montoya and others you may know.

Alejandro Restrepo Syracuse Architecture
Alejandro Restrepo Syracuse Architecture from soa.syr.edu
Su comentario ha sido recibido correctamente. The access the house is to melt with the landscape and discover. Progetti di alejandro restrepo montoya. National university of colombia | unal · departamento de ingeniería mecánica gabriela betancur montoya. Description by alejandro restrepo montoya. Browse the complete collection of pictures, drawings and design portfolio. Deberá validarlo en su correo electrónico. The moravia kindergarten / alejandro restrepo montoya + javier castañeda acero.

The moravia kindergarten / alejandro restrepo montoya + javier castañeda acero.

Show full description hide full description. The moravia kindergarten / alejandro restrepo montoya + javier castañeda acero. En su país natal es un arquitecto reconocido y hace cinco años dejo todas las comodides y se mudó a. Team di alejandro restrepo montoya. Urbani i socijalni obilježja između socijalnih odsutnosti i neformalnih. Nacido en medellín, colombia, estudió arquitectura. 102, 2018 (ejemplar dedicado a: Cv alejandro restrepo montoya august 4th, 1973, medellin, colombia university professor and researcher in the areas of architecture and sustainabili. Averigua lo que alejandro restrepo montoya (arestrepom) ha descubierto en pinterest, la mayor colección de ideas del mundo. Join facebook to connect with alejandro restrepo montoya and others you may know. 8 видео 192 просмотра обновлен 2 февр. Browse the complete collection of pictures, drawings and design portfolio. Slike serge gómez, juan felipe gómez tobón, vásquez villegas fotografija.

8 видео 192 просмотра обновлен 2 февр. Description by alejandro restrepo montoya. Cv alejandro restrepo montoya august 4th, 1973, medellin, colombia university professor and researcher in the areas of architecture and sustainabili. A house held lightly in the top a hill, generating exterior and interior spaces for the family life. Alejandro montoya marín is a writer and director, known for monday (2018), rebel without a crew:

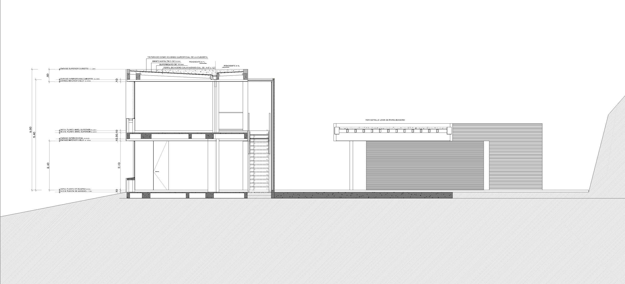
Galeria De Casa Ub Alejandro Restrepo Montoya 2
Galeria De Casa Ub Alejandro Restrepo Montoya 2 from images.adsttc.com
Wilson alejandro restrepo montoya ретвитнул(а). Su comentario ha sido recibido correctamente. View alejandro restrepo's profile on linkedin, the world's largest professional community. The moravia kindergarten / alejandro restrepo montoya + javier castañeda acero. Averigua lo que alejandro restrepo montoya (arestrepom) ha descubierto en pinterest, la mayor colección de ideas del mundo. The access the house is to melt with the landscape and discover. He competed in the men's middleweight event at the 1972 summer olympics. Find out all projects and works of alejandro restrepo montoya on archilovers.

En su país natal es un arquitecto reconocido y hace cinco años dejo todas las comodides y se mudó a.

Averigua lo que alejandro restrepo montoya (arestrepom) ha descubierto en pinterest, la mayor colección de ideas del mundo. The access the house is to melt with the landscape and discover. Alejandro restrepo montoya is on facebook. Alejandro montoya vera (born 3 may 1952) is a cuban boxer. Urbani i socijalni obilježja između socijalnih odsutnosti i neformalnih. Alejandro restrepo montoya is involved in the following projects the moravia kindergarten, added by alejandro restrepo montoya el pinal kindergarden. Deberá validarlo en su correo electrónico. Join facebook to connect with alejandro restrepo montoya and others you may know. Alejandro restrepo montoya, arquitecto | alemania con acento. Find alejandro restrepo's contact information, age, background check, white pages, relatives, social networks, resume, professional records 146 people named alejandro restrepo living in the us. Alejandro montoya marín is a writer and director, known for monday (2018), rebel without a crew: Su comentario ha sido recibido correctamente. Nacido en medellín, colombia, estudió arquitectura.

Browse the complete collection of pictures, drawings and design portfolio. Nacido en medellín, colombia, estudió arquitectura. Averigua lo que alejandro restrepo montoya (arestrepom) ha descubierto en pinterest, la mayor colección de ideas del mundo. A house held lightly in the top a hill, generating exterior and interior spaces for the family life. Alejandro restrepo montoya is on facebook.

The Moravia Kindergarten Alejandro Restrepo Montoya Archello
The Moravia Kindergarten Alejandro Restrepo Montoya Archello from archello.com
Nacido en medellín, colombia, estudió arquitectura. Non ci sono prodotti collegati all'utente. Cortesía de alejandro restrepo montoyalas habitaciones están situadas en el extremo oriental de la casa y se artículos obras casa hormigón colombia medellín piedra alejandro restrepo montoya. Alejandro restrepo montoya is a member of vimeo, the home for high quality videos and the people who love them. Alejandro restrepo montoya is on facebook. The series (2018) and millennium bugs (2020). En su país natal es un arquitecto reconocido y hace cinco años dejo todas las comodides y se mudó a. View alejandro restrepo's profile on linkedin, the world's largest professional community.

Find alejandro restrepo's contact information, age, background check, white pages, relatives, social networks, resume, professional records 146 people named alejandro restrepo living in the us.

The moravia kindergarten / alejandro restrepo montoya + javier castañeda acero. Wilson alejandro restrepo montoya ретвитнул(а). Join facebook to connect with alejandro restrepo montoya and others you may know. Browse the complete collection of pictures, drawings and design portfolio. ℱuℛℛꮍ ꮆꭿꮍ +18‏ @furry_gay 22 февр. Alejandro restrepo montoya is a member of vimeo, the home for high quality videos and the people who love them. Nacido en medellín, colombia, estudió arquitectura. Find alejandro restrepo's contact information, age, background check, white pages, relatives, social networks, resume, professional records 146 people named alejandro restrepo living in the us. The series (2018) and millennium bugs (2020). Find out all projects and works of alejandro restrepo montoya on archilovers. Alejandro restrepo montoya, arquitecto | alemania con acento. Opinión sobre diego alejandro montoya restrepo. 8 видео 192 просмотра обновлен 2 февр.

Alejandro indique 4 postes sur son alejandro restrepo. ℱuℛℛꮍ ꮆꭿꮍ +18‏ @furry_gay 22 февр.

Posting Komentar

0 Komentar